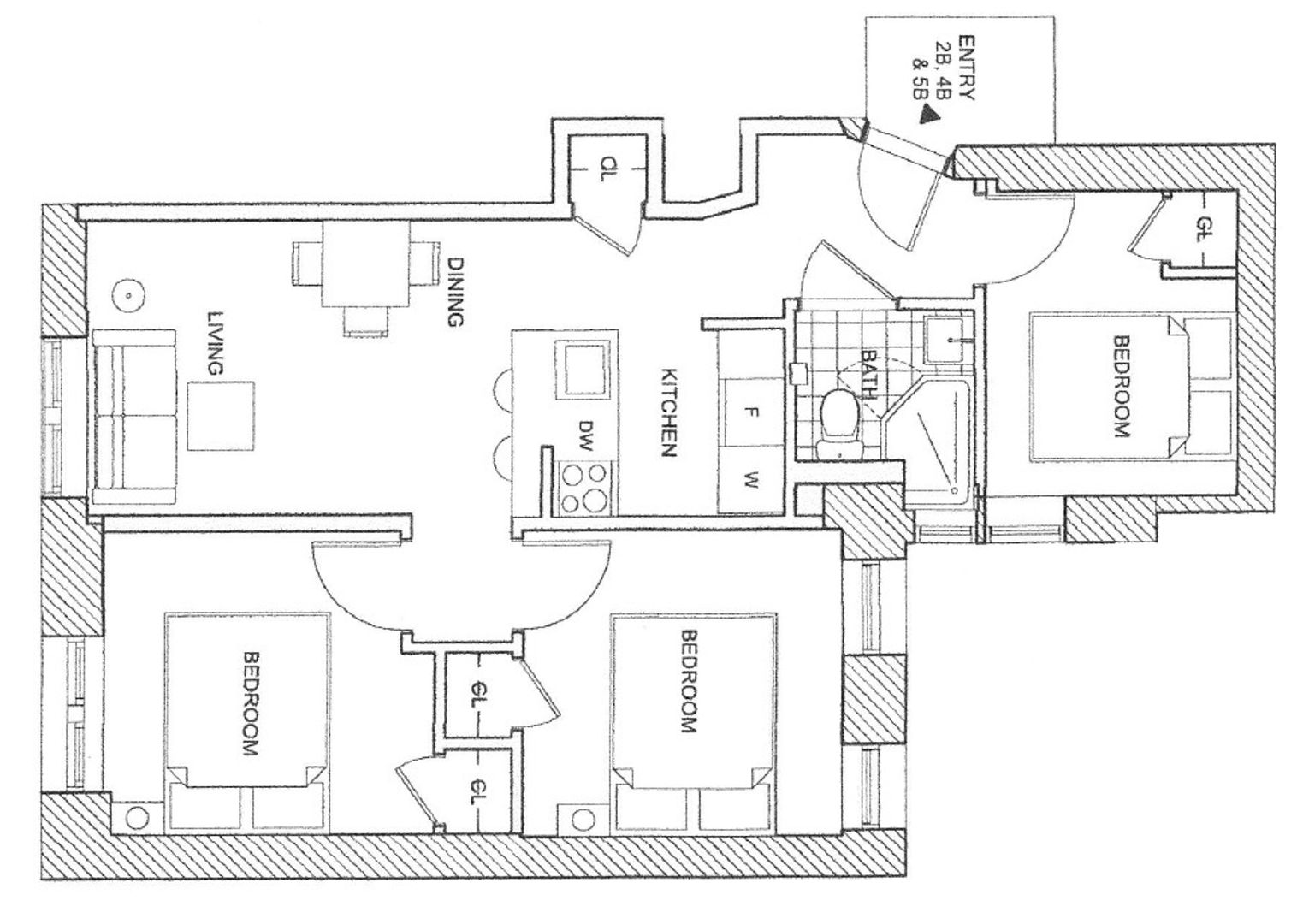
227 Waverly Place - 4B, New York, NY 10014

227 Waverly Place - 4B, New York, NY 10014